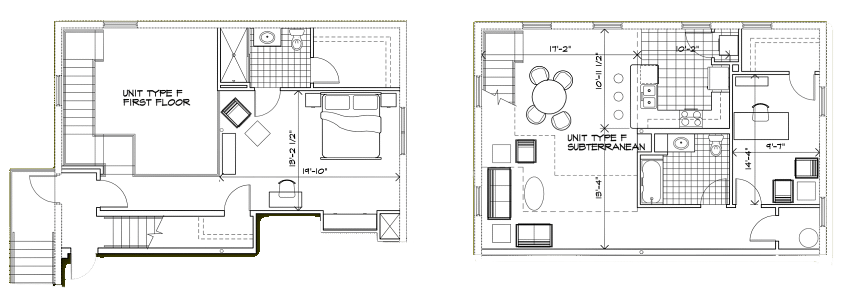
FloorPlan F

Just off the courtyard, Plan F apartments are our largest 2 bed/2 bath units and feature exposed brick walls. Master suites are located upstairs overlooking the living room. The kitchen, a bath and a 2nd bedroom/office are also on the first level.

 
Download Floorplan
 
 

Amenities


  • 1,500 square feet

  • Hardwood floors upstairs

  • Concrete floors downstairs

  • Spacious walk-in closets

  • Whirlpool washer and dryer in each unit

  • Linen cabinets

  • Stainless steel oven and dishwasher

  • Stainless steel side-by-side refrigerator ice/water dispenser

  • Granite kitchen countertops

  • Granite bath vanity tops in master bath

View All Amenities